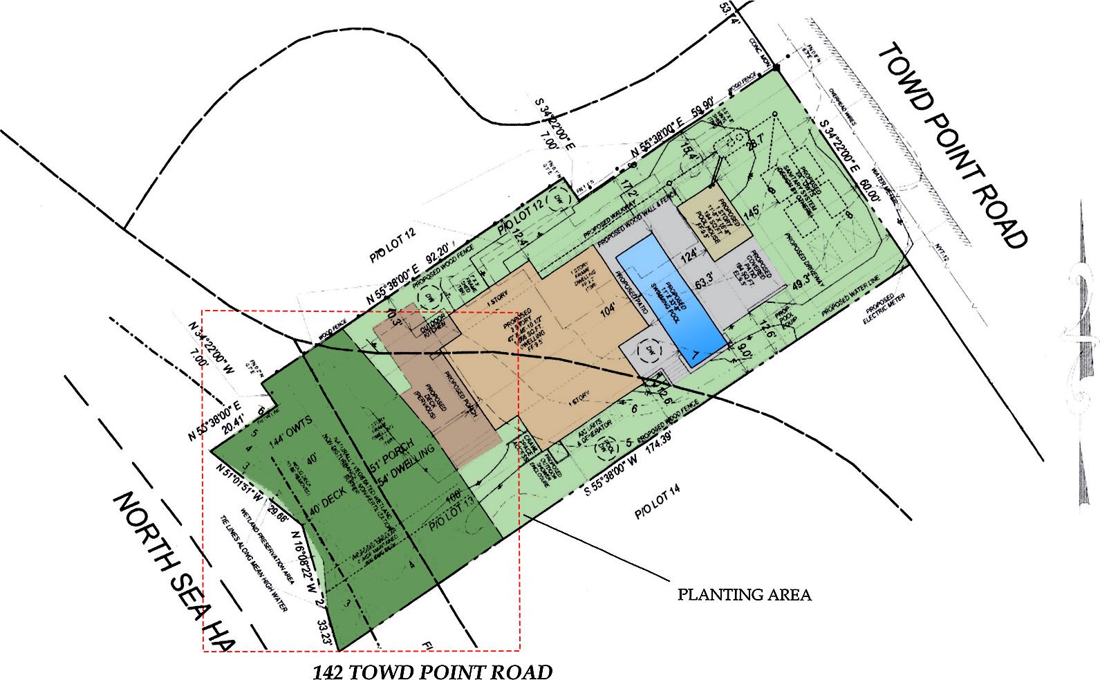
142 Towd Point Rd, Southampton, NY 11968
-
Beds
4
-
Baths
4.5
-
Acres
0.31
-
Sq. ft.
Last Verified:
Mar 24, 2026
Highlights
Modern Waterfront with Dock Permit in Hand- Now Reduced
The best of coastal contemporary living in the Hamptons awaits in this stunning new construction from renowned architects, Naiztat & Ham. Beyond the western-sunset exposure and breathtaking water views, this rare offering includes an 11'x34' heated pool, pool house with bathroom. Nestled in a quiet community with panoramic vistas over North Sea Harbor and Conscience Point Natural Reserve, this is a nature lover's paradise. Thoughtfully rea
Home Details
Construction
Property type: Single-family
Property style: Modern
New construction: Yes
Year built: 2024
Interior Details
Sq. ft: 2,800
Price per square foot: $1,784/sqft
Basement type: Crawl
Stories: 2
Fireplaces: 1
Bedrooms & Bathrooms
Bedrooms: 4
Full bathrooms: 4
Half bathrooms: 1
Bathroom on first floor: Yes
Other Rooms
Laundry room, Study
Utilities
Water source: Town
Heat type: Gas hot air
Central air conditioning: Yes
Financial Details
Price: $4,995,000
Taxes: -
Outdoor Details
Pool & Spa
Pool: Yes
Heated pool: Yes
Pool material: Gunite
Parking
Garage: No
Outdoor Amenities
Tennis: No
Room for a tennis court: No
Water frontage/View: Waterfront
Outdoor Shower(s): Yes
Rights & Access
Beach rights: Yes
Lot Details
Lot size: 0.31 Acres
South of highway: No
Location
-
Nearby Beaches
-
1 mileNorth Sea Beach
-
5 milesNew Sufflok Beach
-
5 milesLittle Plains Beach
-
-
Nearby Transportation
-
3 milesSouthampton - Hampton Jitney
-
3 milesPedalShare: A Butler's Manor -
-
3 milesPedalShare: The Spur @ The Station -
-
















































