1680 North Sea Rd, Southampton, NY 11968
-
Beds
3
-
Baths
2.5
-
Acres
2.54
-
Sq. ft.
Last Verified:
Nov 14, 2025
Highlights
Timeless Hamptons Charm in PRIME location, VERY LOW TAXES!!
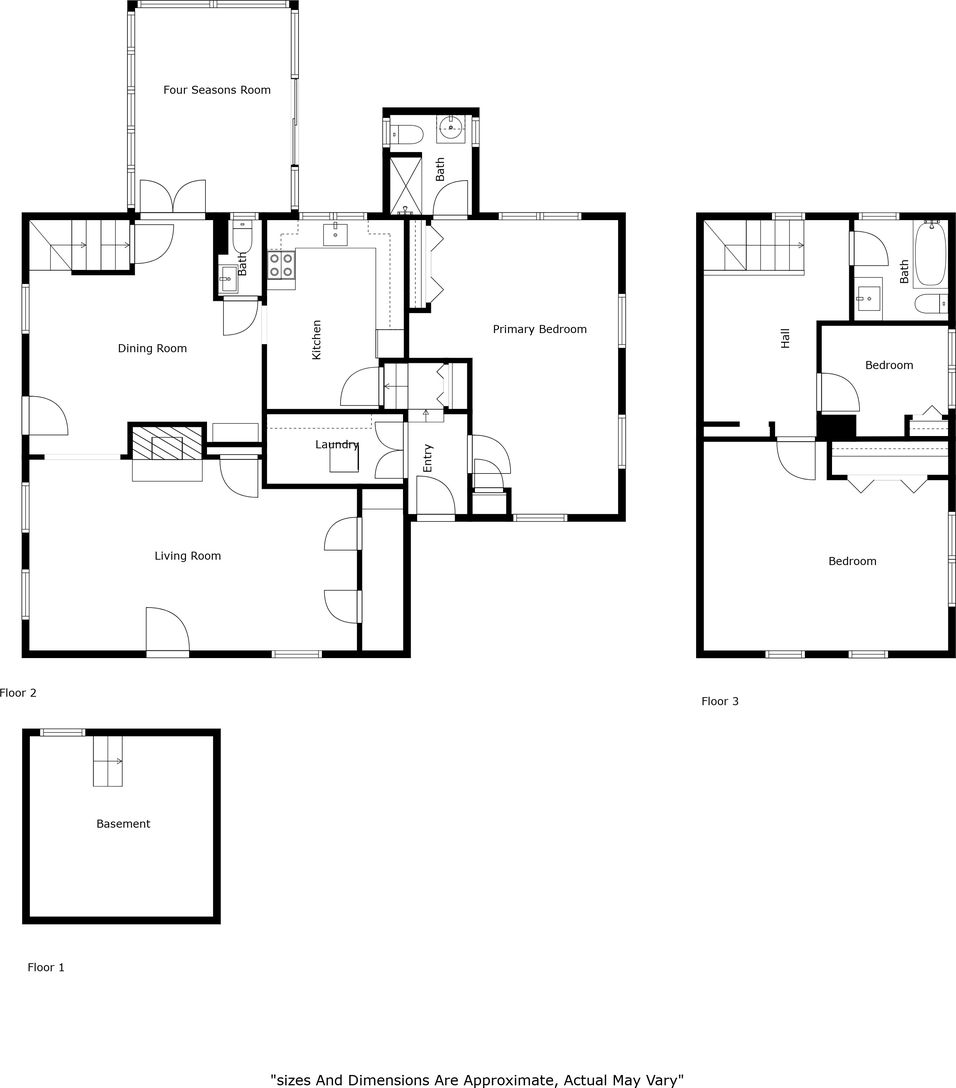
Step into the timeless charm of this historic 1800s farmhouse, originally built by Sea Captain Rose, set on 2.54 acres in the coveted North Sea community of Southampton. Located just minutes from Southampton Village and a short distance to bay beaches, Strong's Marina, and Big Fresh Pond Recreation Area, this one-of-a-kind property offers the perfect blend of history, nature, and convenience. The farmhouse features 3 bedrooms and 2.5 baths, in
Home Details
Construction
Property type: Single-family
Property style: Cottage
New construction: No
Year built: 1890
Interior Details
Sq. ft: 1,900
Price per square foot: $839/sqft
Basement type: Crawl
Stories: 2
Floors: Hardwood
Fireplaces: 1
Bedrooms & Bathrooms
Bedrooms: 3
Full bathrooms: 2
Half bathrooms: 1
Bathroom on first floor: Yes
Primary bedroom on first floor: Yes
Utilities
Water source: Town
Central air conditioning: No
Financial Details
Price: $1,595,000
Taxes: $2,613/yr
Outdoor Details
Pool & Spa
Pool: No
Room for a pool: Yes
Parking
Garage: Yes
Spaces in garage: 2
Outdoor Amenities
Tennis: No
Room for a tennis court: No
Water frontage/View: None / mainland
Outdoor Shower(s): No
Rights & Access
Docking rights: Yes
Lot Details
Lot size: 2.54 Acres
South of highway: No
Location
-
Nearby Beaches
-
2 milesNorth Sea Beach
-
4 milesLittle Plains Beach
-
4 milesCryder Beach
-
-
Nearby Transportation
-
3 milesSouthampton - Hampton Jitney
-
3 milesPedalShare: A Butler's Manor -
-
3 milesSouthampton - LIRR
-































