Photo slider slide 1
of 11,
1 / 11
236 Edgemere St Unit 427, Montauk, NY 11954
$349,000
-
Beds
2
-
Baths
2
-
Acres
-
Sq. ft.
Listing by Martha Greene Real Estate llc (63 The Plaza, Montauk NY 11954)
Highlights
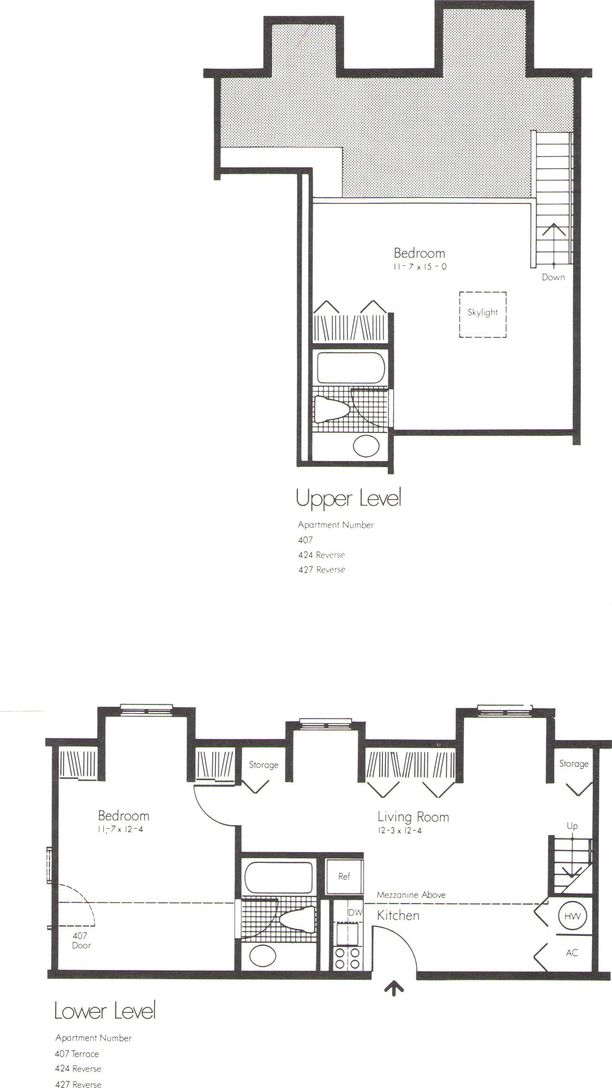
Renovated and Rent-able at the Montauk Manor
This 2 bedroom 2 bathroom renovated duplex apartment at the Montauk Manor has the ease of simple living. Enjoy all the amenities the Manor has to offer...tennis, outdoor swimming, indoor pool with Jacuzzi and sauna, onsite restaurant and convenience of a shuttle service in and around Montauk. This is apartment is in the rental program and has generated an income to cover maintenance costs. Call Carolann Sandoval to view the possibilities.
Home Details
Construction
Property type: Condo
New construction: No
Interior Details
Sq. ft: -
Bedrooms & Bathrooms
Bedrooms: 2
Full bathrooms: 2
Utilities
Central air conditioning: No
Financial Details
Price: $349,000
Taxes: $1,600/yr
Condo fee: $2,350/mo
Outdoor Details
Pool & Spa
Pool: Yes
Heated pool: Yes
Parking
Garage: No
Outdoor Amenities
Tennis: Yes
Water frontage/View: None / mainland
Outdoor Shower(s): No
Lot Details
South of highway: No
Location
-
Nearby Transportation
-
0 milesMontauk - LIRR
-
1 mileMontauk - Hampton Jitney
-
1 mileMontauk - Hamptons Luxury Liner
-
-
Nearby Beaches
-
1 mileNavy Beach
-
1 mileKirk Park Beach
-
2 milesDitch Plains Beach
-










