Photo slider slide 1
of 5,
1 / 5
3260 Noyac Rd, Sag Harbor, NY 11963
$5,840,000
-
Beds
-
Baths
-
Acres
9.82
-
Sq. ft.
Listing by Douglas Elliman Real Estate (138 Main Street, Sag Harbor NY 11963)
Highlights
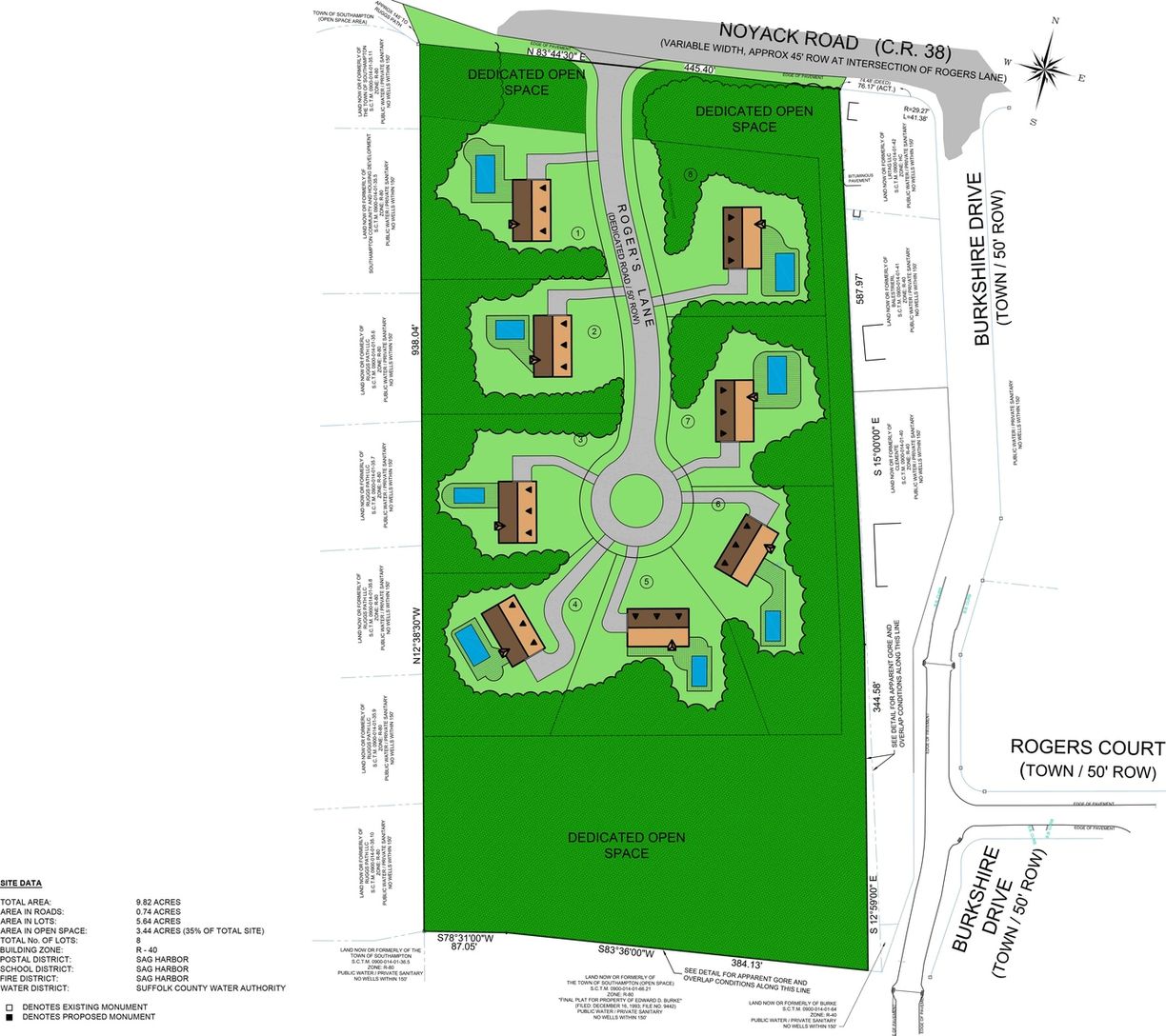
8 Lot Subdivision in Sag Harbor
Introducing a one-of-a-kind opportunity to purchase a 9.8-acre, 8-lot subdivision
(under final conditional approval) in Sag Harbor, New York. The lots are prime for development, ranging in size from 29,950 to 33,266 square feet, with ample room to build the ideal Hampton's home with a pool and a finished lower level. The property is positioned between two well established developments and is within close proximity to Sag Harbor Village,
Home Details
Construction
Property type: Land
New construction: No
Interior Details
Sq. ft: -
Utilities
Central air conditioning: No
Financial Details
Price: $5,840,000
Taxes: -
Outdoor Details
Pool & Spa
Pool: No
Room for a pool: Yes
Parking
Garage: No
Outdoor Amenities
Tennis: No
Room for a tennis court: No
Water frontage/View: None / mainland
Outdoor Shower(s): No
Lot Details
Lot size: 9.82 Acres
Cul-de-sac: Yes
South of highway: No
Location
-
Nearby Beaches
-
1 mileFoster Memorial Town Beach
-
3 milesHaven's Beach
-
3 milesShell Beach
-
-
Nearby Transportation
-
3 milesSag Harbor - Hampton Jitney
-
4 milesBridgehampton - LIRR
-
4 milesBridgehampton - Hamptons Luxury Liner
-




