414 Main St, Westhampton Beach, NY 11978
- June 2026$15,000
- July 2026$25,000
- August - Labor Day 2026 $30,000
-
Beds
3
-
Baths
3
-
Acres
0.55
-
Sq. ft.
Last Verified:
Oct 30, 2025
Highlights
QUIOGUE SUMMER HOUSE
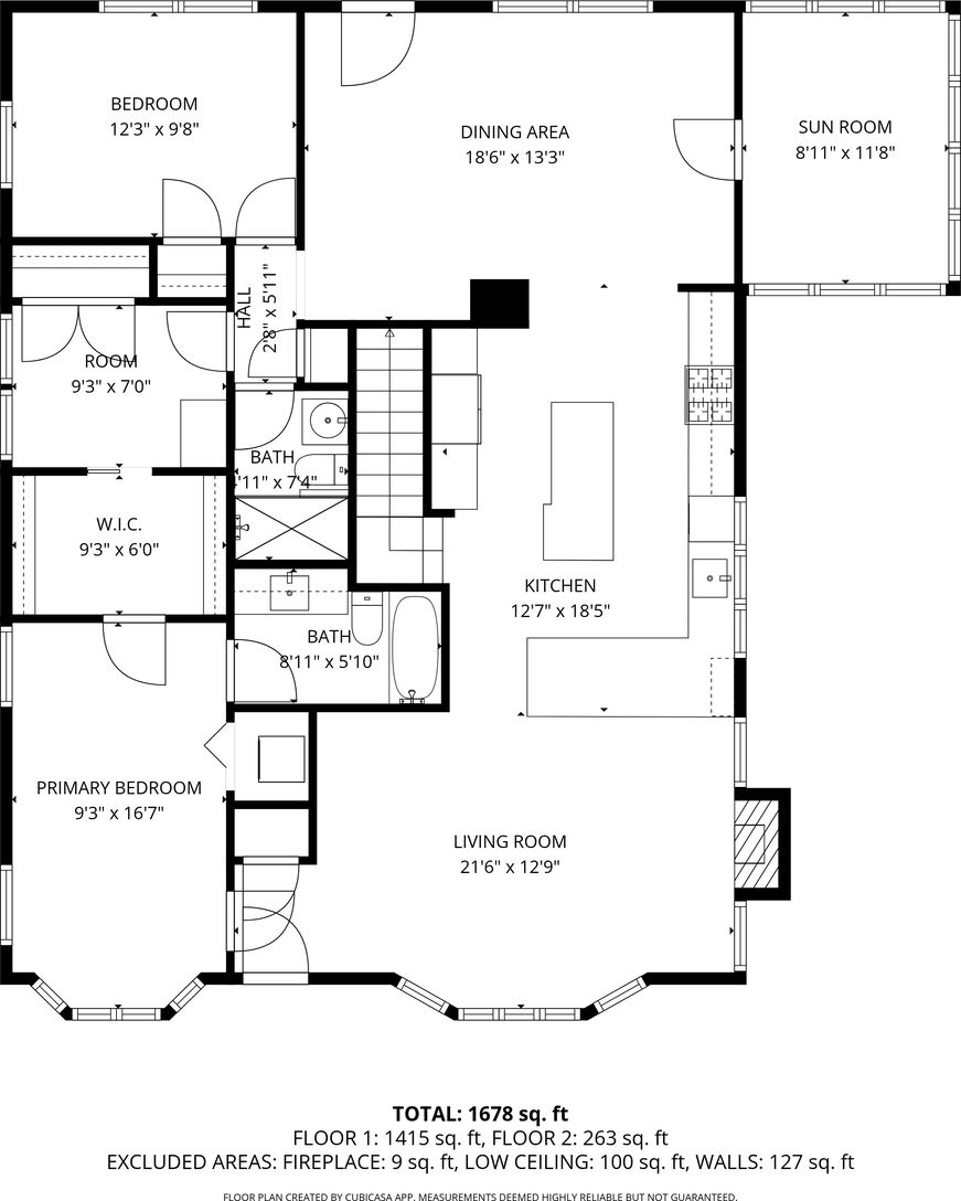
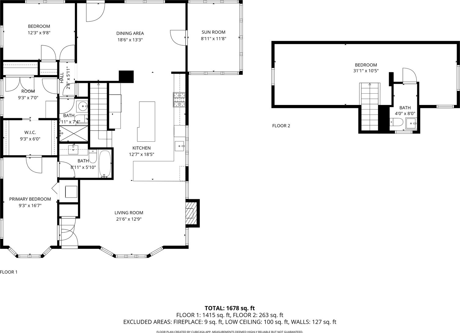
Nestled in the heart of Quiogue, barely a half mile from the heart of Westhampton Beach, this charming three+ bedroom, three-bath cottage offers the perfect summer retreat. The updated kitchen opens to a large dining area and a cozy living room, designed for relaxation and easy entertaining. The first-floor primary suite includes a walk-through closet and spacious dressing room. Also on the main floor is a guest bedroom and full bath, and a su
Home Details
Construction
Property type: Single-family
Property style: Bungalow
New construction: No
Year built: 1957
Interior Details
Sq. ft: 2,236
Basement type: Partial
Stories: 2
Fireplaces: 1
Furnished: Yes
Bedrooms & Bathrooms
Bedrooms: 3
Full bathrooms: 3
Bathroom on first floor: Yes
Primary bedroom on first floor: Yes
Linens: No
Utilities
Water source: Town
Heat type: Oil hot air
Central air conditioning: Yes
Tv/cable/satellite: Yes
House Rules
Pet policy: Pets considered
Smoking policy: Not allowed
Outdoor Details
Pool & Spa
Pool: Yes
Parking
Garage: Yes
Spaces in garage: 1
Outdoor Amenities
Tennis: No
Room for a tennis court: No
Water frontage/View: None / mainland
Outdoor Shower(s): No
Rights & Access
Beach rights: Yes
Lot Details
Lot size: 0.55 Acres
South of highway: Yes
Location
-
Nearby Beaches
-
1 mileRogers Beach
-
3 milesVillage Beach
-
5 milesPike's Beach
-
-
Nearby Transportation
-
1 mileQuogue - Hampton Jitney
-
1 mileWesthampton - LIRR
-
2 milesQuogue/Westhampton - Quogue/Westhampton Airport
-

























