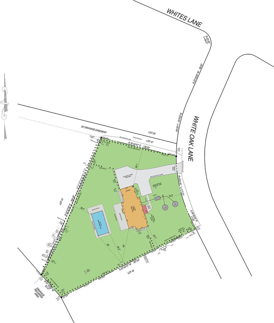
5 White Oak Ln, Southampton, NY 11968
-
Beds
7
-
Baths
5.5
-
Acres
0.98
-
Sq. ft.
Highlights
LUXURIOUS SOUTHAMPTON NEW CONSTRUCTION
Discover unparalleled luxury living in this magnificent new construction. This spectacular residential property boasts 7 bedrooms, 5 full baths, and 1 half bath spread across 4,929 square feet of meticulously designed space. Nestled on 0.98 acres of pristine land, this newly constructed masterpiece offers a haven of elegance and comfort. Built in 2024, the residence spans two stories with an additional 1,438 square feet of finished lower level
Home Details
Construction
Property type: Single-family
New construction: No
Year built: 2025
Interior Details
Sq. ft: 4,929
Price per square foot: $1,013/sqft
Basement type: Full
Stories: 2
Bedrooms & Bathrooms
Bedrooms: 7
Full bathrooms: 5
Half bathrooms: 1
Bathroom on first floor: Yes
Other Rooms
Family room/den, Laundry room
Utilities
Central air conditioning: No
Financial Details
Price: $4,995,000
Taxes: -
Outdoor Details
Pool & Spa
Pool: Yes
Heated pool: Yes
Pool material: Gunite
Parking
Garage: Yes
Spaces in garage: 2
Outdoor Amenities
Tennis: No
Room for a tennis court: No
Water frontage/View: None / mainland
Outdoor Shower(s): No
Lot Details
Lot size: 0.98 Acres
South of highway: No
Location
-
Nearby Transportation
-
2 milesPedalShare: A Butler's Manor -
-
2 milesSouthampton - LIRR
-
2 milesSouthampton - Hamptons Luxury Liner
-
-
Nearby Beaches
-
3 milesNorth Sea Beach
-
3 milesCoopers Beach
-
3 milesCryder Beach
-




























































