56 Cedar Point Ln, Sag Harbor, NY 11963
-
Beds
4
-
Baths
3.5
-
Acres
0.68
-
Sq. ft.
Highlights
Stunning Sag Harbor Waterfront
Tucked away along the peaceful waterfront of Sag Harbor lies 56 Cedar Point Lane, a coastal dream offering a quintessential Hamptons home clad in classic cedar shingles. It combines timeless elegance with the tranquility of its surroundings, offering breathtaking east and west-facing water views that capture the essence of coastal living.
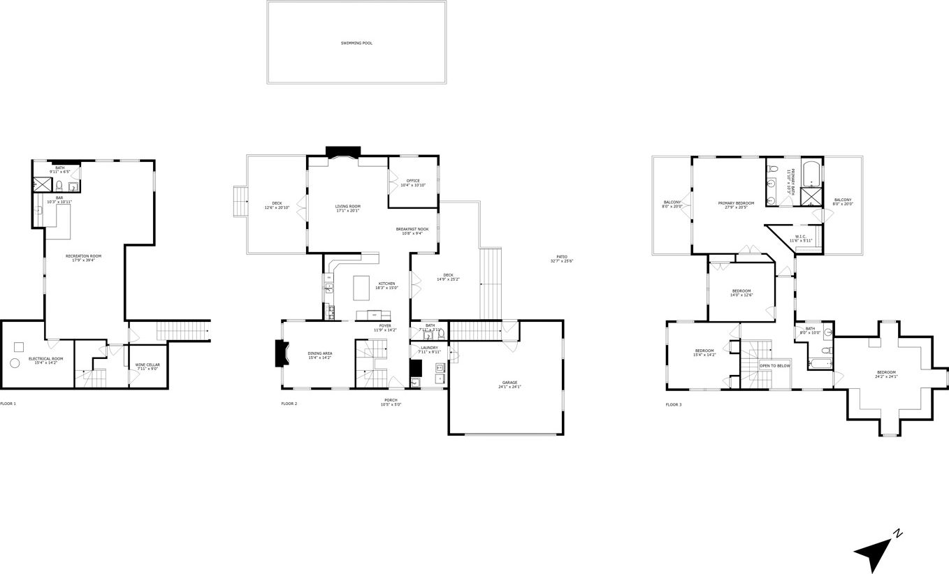
This exquisite property boasts over 5,125+/- sq ft of living space featuring 4 bedrooms and
Home Details
Construction
Property type: Single-family
Property style: Beach-house
New construction: No
Interior Details
Sq. ft: 4,500
Price per square foot: $1,000/sqft
Basement type: Full
Finished basement: Yes
Stories: 2
Floors: Hardwood
Fireplaces: 2
Furnished: Yes
Bedrooms & Bathrooms
Bedrooms: 4
Full bathrooms: 3
Half bathrooms: 1
Other Rooms
Laundry room, Media room, Office
Utilities
Water source: Well
Heat type: Oil hot air
Central air conditioning: Yes
Security system: Yes
Financial Details
Price: $4,500,000
Taxes: -
Outdoor Details
Pool & Spa
Pool: Yes
Heated pool: Yes
Pool material: Gunite
Parking
Garage: Yes
Attached garage: Yes
Spaces in garage: 2
Outdoor Amenities
Tennis: No
Room for a tennis court: No
Water frontage/View: Waterfront
Outdoor Shower(s): No
Dock: Yes
Rights & Access
Water access: Yes
Docking rights: Yes
Lot Details
Lot size: 0.68 Acres
South of highway: No
Location
-
Nearby Beaches
-
2 milesFoster Memorial Town Beach
-
3 milesCedar Beach
-
4 milesShell Beach
-
-
Nearby Transportation
-
3 milesSag Harbor - Hampton Jitney
-
5 milesBridgehampton - LIRR
-
5 milesBridgehampton - Hamptons Luxury Liner
-






































