9 Cooks Ln, Westhampton, NY 11977
-
Beds
5
-
Baths
2
-
Acres
0.7
-
Sq. ft.
Highlights
Westhampton Expanded Cape Cod with In-Ground Swimming Pool - SOLD
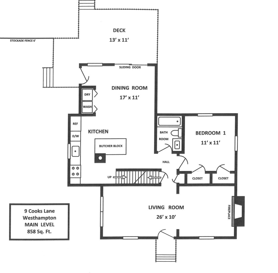
SOLD & CLOSED $960,000 --- Westhampton two-story Expanded Cape Cod style home originally built in 1945 and renovated in 2022. 5 Bedrooms and 2 Bathrooms with full utility basement. Situated on a .7 Acre Parcel with In-Ground 18'x36" Vinyl Swimming Pool and Detached Two-Car Garage. Excellent Rental History the past 15 Years. Features All New Include: Roof - Chimney - Floors - Doors - Lights - Kitchen - Bathrooms - Rear Deck. Rear of Proper
Home Details
Construction
Property type: Single-family
Property style: Cape
New construction: No
Year built: 1945
Interior Details
Sq. ft: 1,482
Price per square foot: $665/sqft
Basement type: Full
Stories: 2
Floors: Hardwood, Tile
Fireplaces: 1
Bedrooms & Bathrooms
Bedrooms: 5
Full bathrooms: 2
Bathroom on first floor: Yes
Other Rooms
Breakfast area, Family room/den, Laundry room, Office
Utilities
Water source: Town
Heat type: Oil hot water
Central air conditioning: No
Financial Details
Price: $985,000
Taxes: $4,526/yr
Co-op maintenance: $0/mo
Condo fee: $0/mo
Outdoor Details
Pool & Spa
Pool: Yes
Pool material: Vinyl
Parking
Garage: Yes
Spaces in garage: 2
Outdoor Amenities
Tennis: No
Room for a tennis court: No
Water frontage/View: None / mainland
Outdoor Shower(s): No
Lot Details
Lot size: 0.7 Acres
Lot with trees: Yes
Near jitney sunrise bus line: Yes
Near train station: Yes
South of highway: No
Zoning: Residential
Location
-
Nearby Transportation
-
1 mileWesthampton - LIRR
-
1 mileQuogue/Westhampton - Quogue/Westhampton Airport
-
2 milesWesthampton - Hampton Jitney
-
-
Nearby Beaches
-
2 milesRogers Beach
-
4 milesVillage Beach
-
4 milesPike's Beach
-





























