(Undisclosed Address),
INCOMPLETE ADDRESS
Contact the broker or agent for full listing details and address.
Water Mill, NY 11976
- June 2026$22,000
- July - Labor Day 2026 $70,000
- August - Labor Day 2026 $45,000
-
Beds
5
-
Baths
4
-
Acres
-
Sq. ft.
Last Verified:
May 22, 2026
Highlights
Water Mill Oversized Perfection
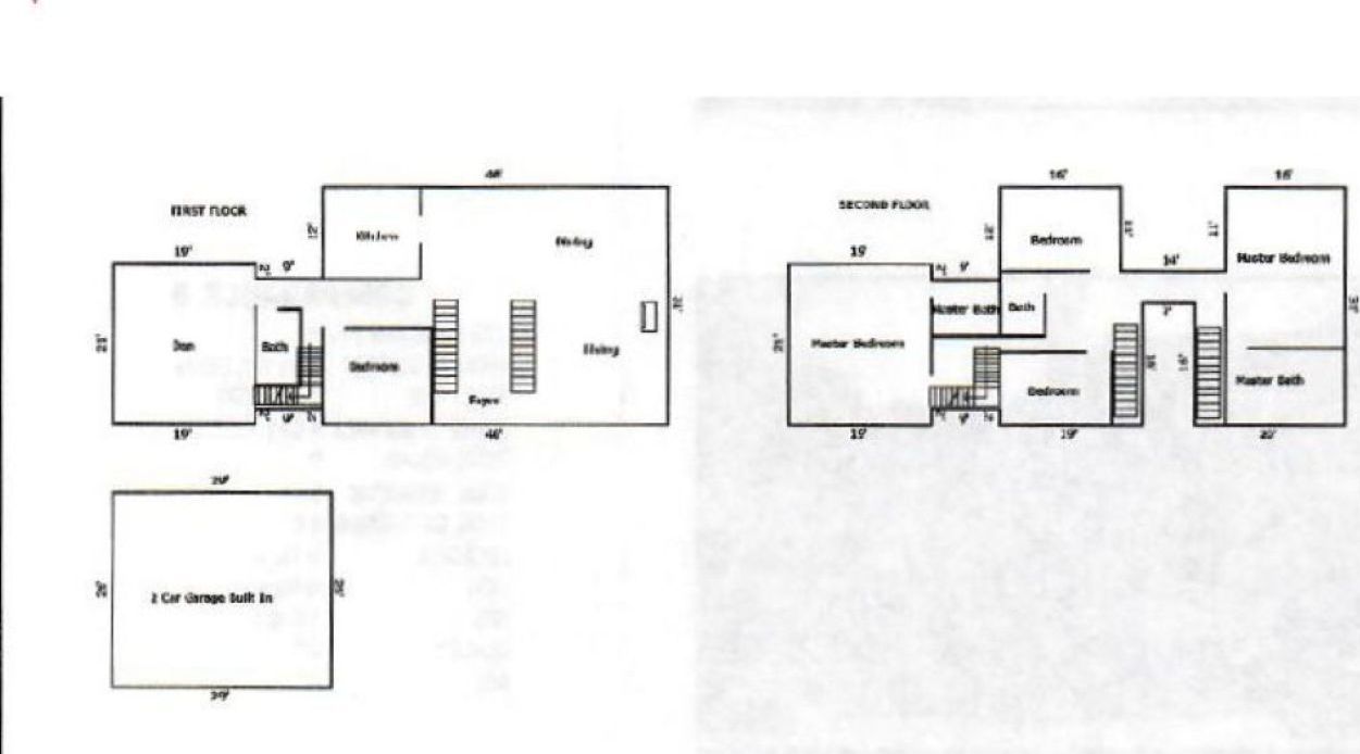
This stunning traditional home features five bedrooms and four bathrooms. the spacious living spaces include a double-height foyer, a large living room with fireplace, dining area, open kitchen, and additional den. Outside on the deck you overlook the private pool area surrounded by complete privacy. The master suite is found on the first floor. This house is great for entertaining indoor or outdoor all summer long!
Home Details
Construction
Property type: Single-family
New construction: No
Interior Details
Sq. ft: 3,800
Fireplaces: 1
Furnished: Yes
Bedrooms & Bathrooms
Bedrooms: 5
Full bathrooms: 4
Bathroom on first floor: Yes
Primary bedroom on first floor: Yes
Linens: No
Other Rooms
Breakfast area
Utilities
Heat type: Oil hot air
Central air conditioning: Yes
House Rules
Pet policy: Pets considered
Smoking policy: Not allowed
Outdoor Details
Pool & Spa
Pool: Yes
Heated pool: Yes
Pool material: Vinyl
Parking
Garage: Yes
Attached garage: Yes
Spaces in garage: 2
Outdoor Amenities
Tennis: No
Room for a tennis court: No
Water frontage/View: None / mainland
Outdoor Shower(s): No
Lot Details
South of highway: No
Location
-
Nearby Transportation
-
2 milesWater Mill - Hamptons Luxury Liner
-
2 milesWater Mill - Hampton Jitney
-
3 milesSouthampton - Hampton Jitney
-
-
Nearby Beaches
-
3 milesNorth Sea Beach
-
4 milesFlying Point Beach
-
4 milesW. Scott Cameron Beach
-
Undisclosed address, contact the listing agent for more details.



































