166 Hampton Rd, Southampton, NY 11968
- Memorial Day - Labor Day 2026 $275,000
- June - July 2026$150,000
- June 2026$75,000
-
Beds
6
-
Baths
6.5
-
Acres
0.63
-
Sq. ft.
Last Verified:
Feb 17, 2026
Highlights
Fully Renovated Classic Southampton Village Home
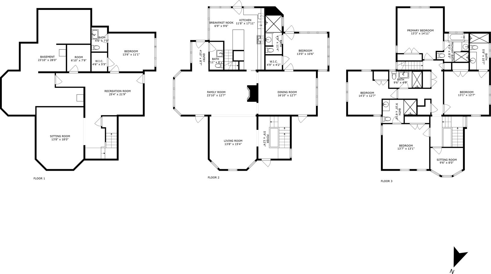
A Classic Village home renovated for today's living comfort is this six bedroom, six and half bath home. Come into a covered porch area that wraps around the home. The living room is open to the den with fireplace, formal dining room and separate beautiful kitchen all opening to the gardens. First floor has a guest suite then four bedrooms on the second floor all ensuite. The finished lower level features a lounge room and bedroom/bath. Enjoy
Home Details
Construction
Property type: Single-family
Property style: Historic
New construction: No
Year built: 1892
Interior Details
Sq. ft: 3,000
Basement type: Full
Stories: 2
Floors: Hardwood
Fireplaces: 1
Furnished: Yes
Bedrooms & Bathrooms
Bedrooms: 6
Full bathrooms: 6
Half bathrooms: 1
Bathroom on first floor: Yes
Linens: Yes
Other Rooms
Family room/den, In-law suite/private guest quarters, Laundry room, Media room, Office
Utilities
Heat type: Oil hot air
Central air conditioning: Yes
Tv/cable/satellite: Yes
Security system: Yes
House Rules
Pet policy: Pets considered
Smoking policy: Not allowed
Outdoor Details
Pool & Spa
Pool: Yes
Heated pool: Yes
Parking
Garage: No
Outdoor Amenities
Tennis: No
Room for a tennis court: No
Water frontage/View: None / mainland
Outdoor Shower(s): No
Lot Details
Lot size: 0.63 Acres
South of highway: Yes
Location
-
Nearby Transportation
-
1 mileSouthampton - Hamptons Luxury Liner
-
1 milePedalShare: The Spur @ The Station -
-
1 mileSouthampton - LIRR
-
-
Nearby Beaches
-
1 mileLittle Plains Beach
-
2 milesCryder Beach
-
2 milesCoopers Beach
-































