46 Robertson Dr, Sag Harbor, NY 11963
-
Beds
4
-
Baths
3
-
Acres
1.5
-
Sq. ft.
Last Verified:
Feb 26, 2026
Highlights
1.92 ACRES IN SAG HARBOR WITH BEACH ACCESS
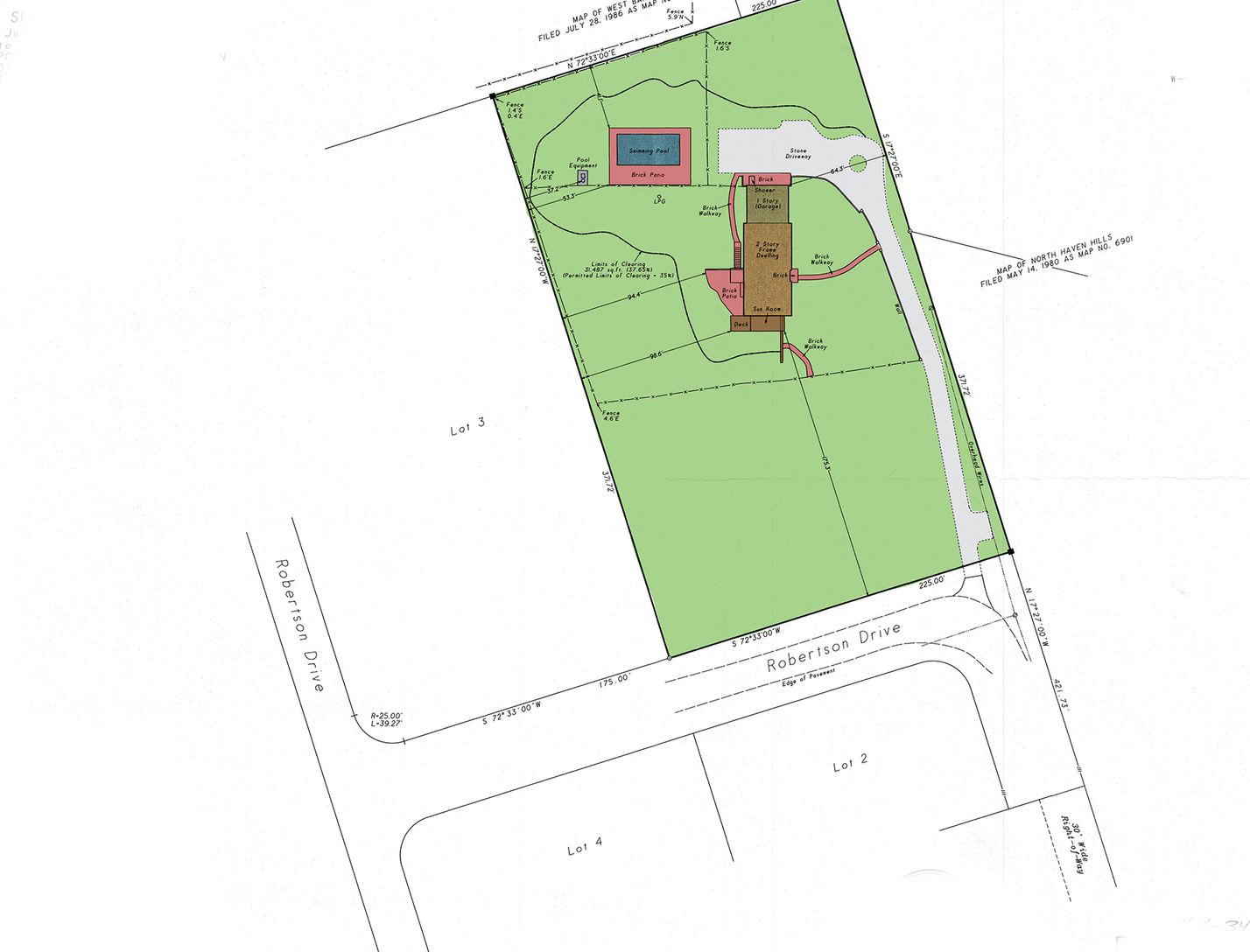
Set on 1.92 acres in North Haven, this property offers two compelling paths: a comfortable, fully livable home as it stands today, or the chance to create a remarkable new Hamptons estate. In one of Sag Harbor's most sought-after waterfront communities, surrounded by $20M+ estates, the scale of the parcel supports a true compound with room for a substantial residence, accessory structure, pool, and tennis. A conceptual site plan illustrates a
Home Details
Construction
Property type: Single-family
New construction: No
Year built: 1992
Interior Details
Sq. ft: 1,740
Price per square foot: $2,181/sqft
Fireplaces: 2
Bedrooms & Bathrooms
Bedrooms: 4
Full bathrooms: 3
Other Rooms
Bonus room, Breakfast area, Family room/den, Media room
Utilities
Water source: Well
Central air conditioning: Yes
Financial Details
Price: $3,795,000
Taxes: $8,198/yr
Outdoor Details
Pool & Spa
Pool: Yes
Pool material: Gunite
Parking
Garage: Yes
Attached garage: Yes
Spaces in garage: 5
Outdoor Amenities
Tennis: No
Room for a tennis court: Yes
Water frontage/View: Bayview
Outdoor Shower(s): No
Rights & Access
Beach rights: Yes
Lot Details
Lot size: 1.5 Acres
South of highway: No
Location
-
Nearby Beaches
-
2 milesFoster Memorial Town Beach
-
2 milesShell Beach
-
2 milesWades Beach
-
-
Nearby Transportation
-
2 milesSag Harbor - Hampton Jitney
-
4 milesShelter Island - Shelter Island Seaplane Base
-
6 milesEast Hampton - East Hampton Airport
-

























