60 Prospect Hill Ln, Montauk, NY 11954
- July 2026$130,000
- August - Labor Day 2026 $140,000
-
Beds
6
-
Baths
4+
-
Acres
1
-
Sq. ft.
Last Verified:
Nov 7, 2025
Highlights
An Elevated Montauk Estate with Endless Views of Lake Montauk
Set on a full acre with sweeping views from lake to bay, this Montauk postmodern masterfully balances architectural elegance with the ease of coastal living. Tucked behind a long, private driveway that winds through mature landscaping, the approach immediately sets the tone for the privacy and tranquility that define this exceptional retreat. Spanning over 5,000 square feet, the residence was designed with a focus on light, scale, and connecti
Home Details
Construction
Property type: Single-family
New construction: No
Year built: 2000
Interior Details
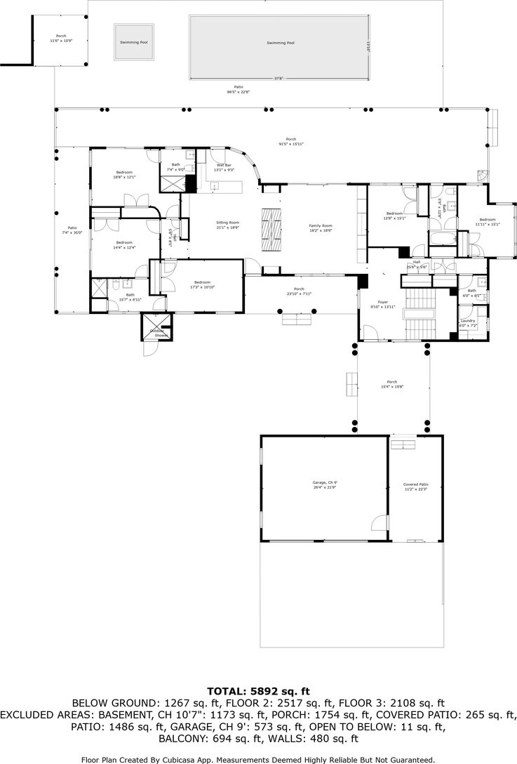
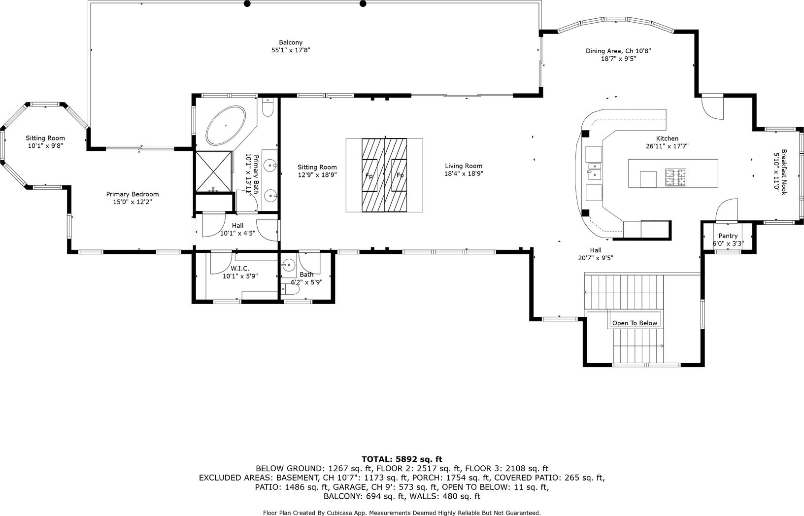
Sq. ft: 5,892
Basement type: Full
Finished basement: Yes
Fireplaces: 1
Furnished: Yes
Bedrooms & Bathrooms
Bedrooms: 6
Full bathrooms: 4
Half bathrooms: 3
Bathroom on first floor: Yes
Linens: No
Other Rooms
Bonus room, Breakfast area, Exercise room, Family room/den, Great room, Laundry room, Library, Loft, Media room, Office, Study
Utilities
Central air conditioning: Yes
Tv/cable/satellite: Yes
House Rules
Pet policy: No pets
Smoking policy: Not allowed
Outdoor Details
Pool & Spa
Pool: Yes
Pool material: Gunite
Hot tub: Yes
Parking
Garage: Yes
Spaces in garage: 2
Outdoor Amenities
Tennis: No
Room for a tennis court: No
Water frontage/View: Waterview
Outdoor Shower(s): Yes
Sprinkler system: Yes
Lot Details
Lot size: 1.0 Acres
South of highway: No
Location
-
Nearby Transportation
-
1 mileMontauk - Montauk Airport
-
3 milesMontauk - LIRR
-
3 milesMontauk - Hampton Jitney
-
-
Nearby Beaches
-
1 mileMontauk County Park
-
2 milesDitch Plains Beach
-
3 milesNavy Beach
-













































