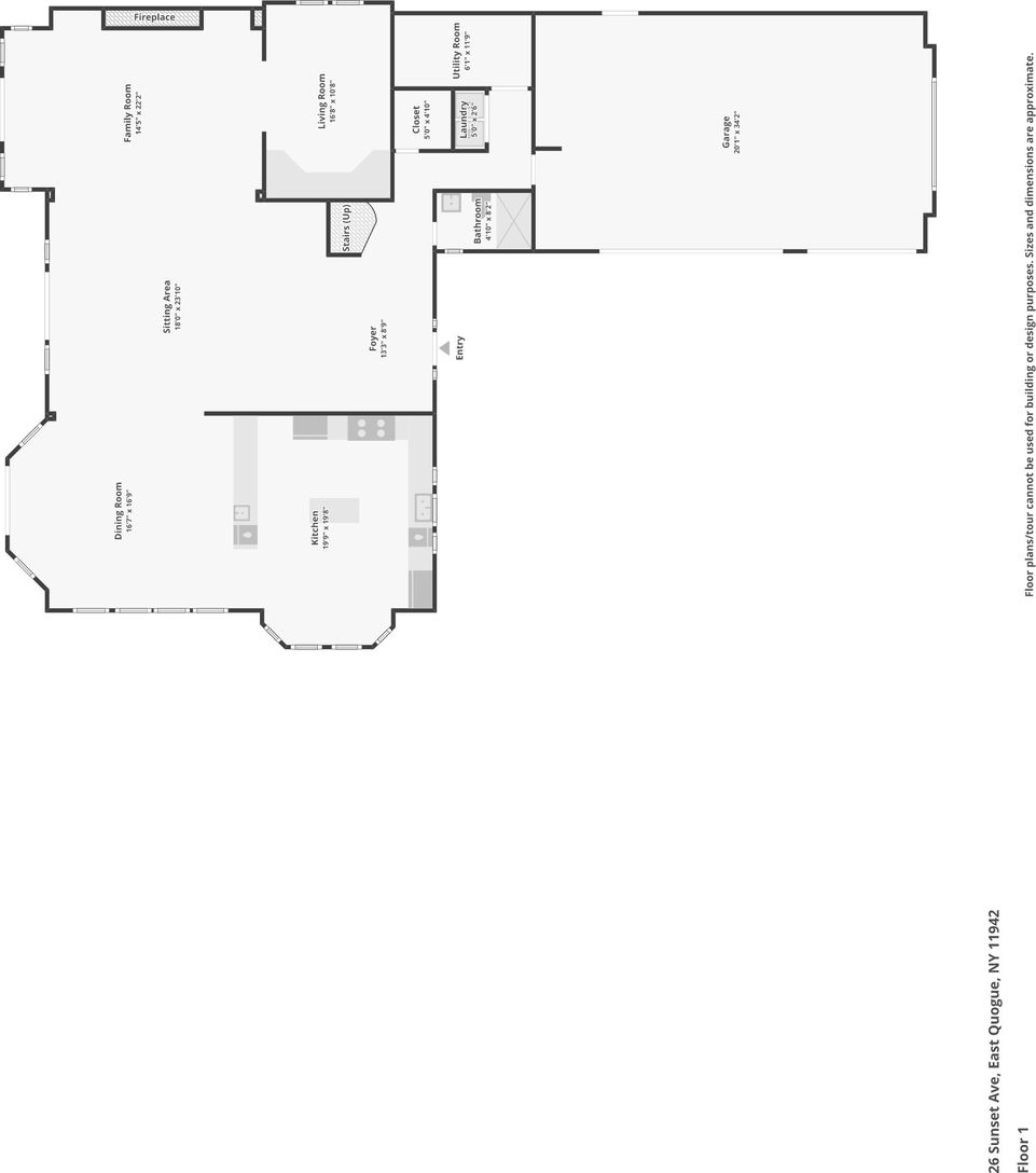
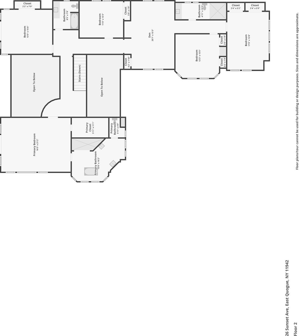
26 Sunset Ave, East Quogue, NY 11942
-
Beds
5
-
Baths
4
-
Acres
1.4
-
Sq. ft.
Last Verified:
May 20, 2026
Highlights
Waterfront with Deep Water Dock
Set along East Quogue's highly sought-after Sunset Avenue, this 1.4-acre waterfront estate offers a rare combination of privacy, scale, and direct access to open water. Tucked deep off the road and framed by manicured hedges, a long private drive leads to the residence, creating a grand sense of arrival. With 100 feet of water frontage on Phillips Creek and views extending toward Shinnecock Bay, the property includes a deep-water dock designed
Home Details
Construction
Property type: Single-family
Property style: Colonial
New construction: No
Year built: 2000
Interior Details
Sq. ft: 4,100
Price per square foot: $1,341/sqft
Basement type: Crawl
Stories: 2
Floors: Hardwood
Fireplaces: 1
Bedrooms & Bathrooms
Bedrooms: 5
Full bathrooms: 4
Bathroom on first floor: Yes
Other Rooms
Bonus room, Breakfast area, Family room/den, Great room, Laundry room
Utilities
Water source: Town
Heat type: Oil hot air
Central air conditioning: Yes
Security system: Yes
Financial Details
Price: $5,499,000
Taxes: $26,056/yr
Outdoor Details
Pool & Spa
Pool: Yes
Heated pool: Yes
Pool material: Gunite
Hot tub: Yes
Parking
Garage: Yes
Attached garage: Yes
Spaces in garage: 3
Outdoor Amenities
Tennis: No
Room for a tennis court: No
Water frontage/View: Creek/inletview
Outdoor Shower(s): No
Sprinkler system: Yes
Dock: Yes
Rights & Access
Water access: Yes
Docking rights: Yes
Lot Details
Lot size: 1.4 Acres
South of highway: Yes
Location
-
Nearby Transportation
-
1 mileEast Quogue - Hampton Jitney
-
2 milesQuogue - Hampton Jitney
-
3 milesQuogue/Westhampton - Quogue/Westhampton Airport
-
-
Nearby Beaches
-
1 mileVillage Beach
-
3 milesTiana Beach
-
3 milesRogers Beach
-













































