7 Fox Hollow Rd, Shelter Island, NY 11964
-
Beds
3
-
Baths
2.5
-
Acres
1.2
-
Sq. ft.
Last Verified:
Oct 31, 2025
Shelter Island Classic Modern Elegance
Tucked on a quiet lane with views of preserved forest and a native lowland glade, this three-story contemporary home was cleverly designed with thought to its hillside setting and natural light. Its clean lines and layout take inspiration from the modernist tradition-most notably, from architect Leonard Parker's summer home in Minnetonka, Minnesota. Parker, a collaborator in Eero Saarinen's studio and project architect for the Gateway Arch in
Home Details
Construction
Property type: Single-family
Property style: Modern
New construction: No
Year built: 1991
Interior Details
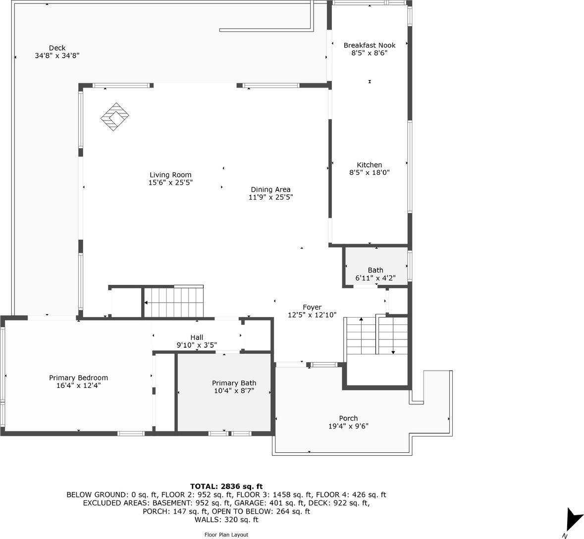
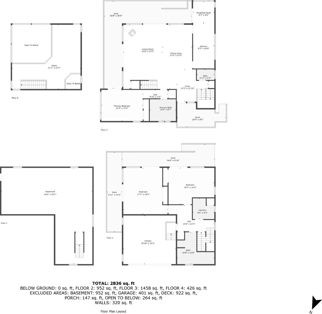
Sq. ft: 3,038
Price per square foot: $617/sqft
Basement type: Full
Stories: 2
Floors: Hardwood
Fireplaces: 1
Bedrooms & Bathrooms
Bedrooms: 3
Full bathrooms: 2
Half bathrooms: 1
Bathroom on first floor: Yes
Primary bedroom on first floor: Yes
Other Rooms
Family room/den, In-law suite/private guest quarters, Media room
Utilities
Water source: Well
Heat type: Oil hot air
Central air conditioning: Yes
Financial Details
Price: $1,875,000
Taxes: $6,386/yr
Outdoor Details
Pool & Spa
Pool: No
Room for a pool: No
Parking
Garage: No
Outdoor Amenities
Tennis: No
Room for a tennis court: No
Water frontage/View: None / mainland
Outdoor Shower(s): Yes
Lot Details
Lot size: 1.2 Acres
South of highway: No
Location
-
Nearby Beaches
-
1 mileWades Beach
-
1 mileShell Beach
-
2 milesCrescent Beach
-
-
Nearby Transportation
-
2 milesShelter Island - Shelter Island Seaplane Base
-
3 milesGreenport - Hampton Jitney
-
3 milesGreenport - LIRR
-



















































